arquitetar
"Procurar as orgânicas,os movimentos espontâneos,isto é, compreender a natureza para depois demarcar na geografia.A construção também tem que ser uma desconstrução.É necessário reflectir e inflectir.Procurar estar na essência da geometria.Resolver, encontrar o arco, ligar dois pontos, enfrentar um projeto e uma ideia, empreender uma lógica, um mundo."
quarta-feira, 28 de abril de 2021
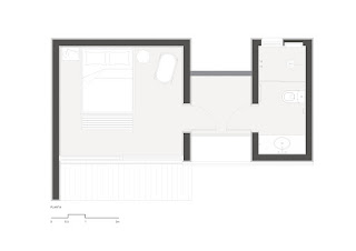
Suíte de Praia / Arquea Arquitetos, Guaratuba - Paraná
O projeto se localiza no município de Guaratuba em uma propriedade em frente ao mar. A suíte de praia é um anexo isolado da casa já existente. O proprietário tinha como objetivo construir um espaço de maior privacidade e valorização da paisagem. O maior desafio era integrar o anexo á paisagem e a casa da família. Para isso, a suíte foi desmembrada em dois volumes, quarto e banheiro, conectados pelo closet, com o objetivo de suavizar a relação do construído com o entorno. O volume maior, referente ao quarto, se volta para o mar e aproveita a visão panorâmica através de uma grande abertura. No volume do banheiro, a abertura é zenital. A escolha de materiais também se mostrou sensível ao incorporar a estética rústica do revestimento em tijolos da casa da família ao novo projeto. Além do tijolo, a madeira aparece em um pequeno deck e no brise móvel de fechamento do quarto, solução pensada para controlar a entrada de luz e garantir privacidade e segurança ao proprietário. A suíte se encaixa de forma delicada no terreno, se mescla a paisagem e é permeada pela vegetação, preservada quase integralmente
sábado, 24 de abril de 2021
Casa do Lago / Cadi Arquitetura, Imigrantes, Rio Grande Do Sul
Espaço para receber os amigos e curtir boa música. Este foi o desejo do proprietário, que é DJ e tem 26 anos. Localizado próximo a cidade de Imigrante, no interior do Rio Grande do Sul, o local fica na parte mais alta no meio as montanhas que circundam a cidade. O imóvel de 96m² é um refúgio no meio da natureza.
O conceito do projeto partiu da ideia de uma cabana já que o entorno conta com um lago artificial de mais de mil metros quadrados de área. A cabana é usada apenas para lazer e, por isso, não conta com dormitórios. O projeto conta com uma ampla área de lazer que engloba espaços para estar e TV, cozinha e jantar voltados para grandes aberturas que fazem a conexão com o externo, permitindo uma visão privilegiada de todos os ângulos do lago e das montanhas.
A natureza do local e o estilo rústico foram as inspirações para o projeto da cabana onde utilizamos bastante madeira e pedras Jacarandá em seu estado bruto, ou seja, sem argamassa entre elas relembrando as taipas existentes no local.
Assinar:
Comentários (Atom)

















































